Breestraat

Senior apartments, group homes for elderly people with dementia, shop and parking garage


Text not available in English

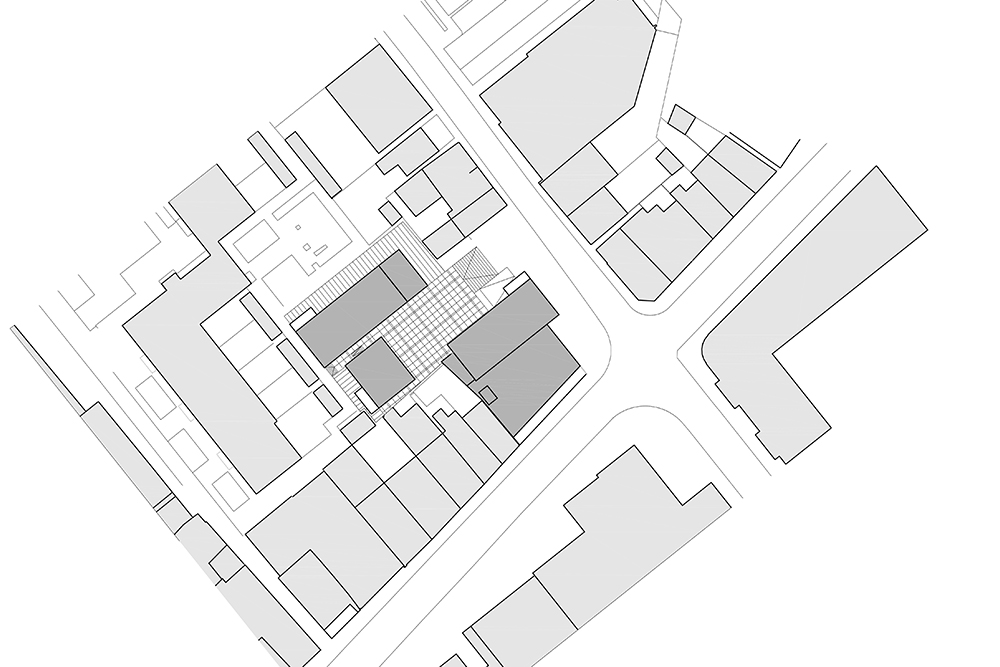
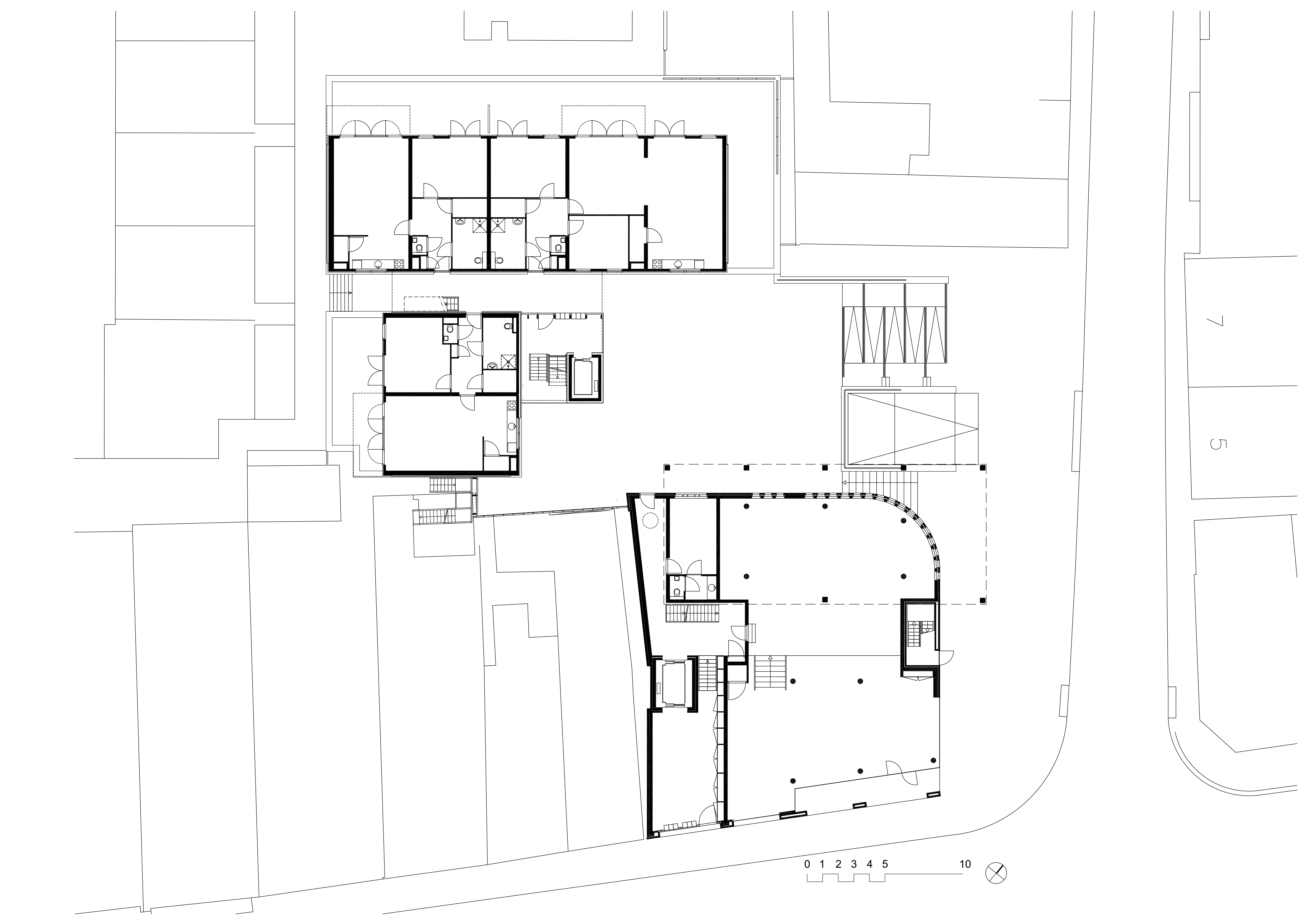
Op een kleine binnenstedelijke locatie in het centrum van Beverwijk is een project gerealiseerd met een gedifferentieerd programma. Aan de openbare ruimte is een compact, verhoogd plein toegevoegd. Dit plein geeft betekenis aan de aanwezige ruimte op de hoek Breestraat / Peperstraat door de functionele en ruimtelijke relatie die tussen het plein en de openbare straat ontstaat. Onder deze collectieve, openbaar toegankelijke buitenruimte is een kelder voor 26 auto’s en bergingen gesitueerd. Rond het plein zijn in drie en vijf bouwlagen 11 seniorenappartementen en drie groepswoningen voor psychogeriatrische patiënten (kleinschalige intramurale voorziening) gebouwd. Doordat de appartementen met hun woonkamers en terrassen gericht zijn op de achterliggende, voorheen anonieme openbare ruimte is de kwaliteit van deze ruimte sterk verbeterd.

De Breestraat, de belangrijkste winkelstraat van Beverwijk, krijgt op deze plek een nieuwe impuls door op de hoek met de Peperstraat winkelruimte te realiseren en de groepswoningen vanuit de Breestraat te ontsluiten. De groepswoningen zijn op de levendige hoek Breestraat / Peperstraat gebouwd om de bijzondere groep bewoners zoveel mogelijk visueel contact te bieden met de omgeving.

Aan de Breestraat is de in baksteen gemetselde gevel aangepast aan de schaal van de bestaande bebouwing in de winkelstraat door deze gevel op te delen in twee delen van circa 6 meter breed, de derde verdieping terug te laten springen en de gevel te voorzien van verticale gevel openingen. De gevels van de bebouwing rond het binnenterrein zijn horizontaal van karakter en uitgevoerd in een zilverkleurige geprofileerde metaalplaat met wit geëmailleerd glas.

Op de locatie vindt op kleine schaal een stedelijke verdichting plaats en wordt de kwaliteit van het omliggende gebied door een zorgvuldige inpassing en situering van de diverse functies versterkt.

Location: Beverwijk
Construction method: Concrete
facade material: Brick and aluminum corrugated sheet